Venda - Apartamento - T3 - Glória e Vera Cruz - Aveiro - HMBK4972

Venda - Apartamento - T3 - Glória e Vera Cruz - Aveiro

Aveiro, Glória e Vera Cruz
  • Imprimir
Planta

3

3

123,05 m2

103,99 m2

Valor venda
435 000 €

Ref: HMBK4972

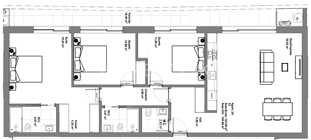
T3 em Aveiro com Master Suite, Closet e Varanda em todas as divisões

Este apartamento T3, situado a poucos minutos do centro de Aveiro, distingue-se pela clareza da sua distribuição. Com uma área bruta de 123,05 m², a planta foi desenhada para separar eficazmente a zona de convívio da zona de descanso, garantindo privacidade onde ela é mais necessária.

A entrada faz-se por um Hall que organiza a casa.
- Open Space (35,52 m²): Uma sala ampla integrada com a cozinha, criando um espaço fluido para o dia a dia.
- Apoio Social: Esta zona é servida por um WC de serviço à entrada, evitando que as visitas tenham de usar a zona privada.

Exterior: A sala estende-se para uma varanda corrida de 18,40 m², que acompanha toda a fachada do apartamento.

Separada por um corredor, a área de descanso oferece três quartos espaçosos, todos com acesso direto à varanda:
- A Master Suite: O ex-libris da casa. Conta com uma área de dormir de 18,24 m², uma casa de banho privativa e, o mais importante, um Walk-in Closet de 4,35 m².
- Quartos Secundários: Dois quartos (12,86 m² e 11,99 m²), ambos com roupeiros embutidos.
- Banho de Apoio: Um WC completo de 3,47 m² que serve estes dois quartos.

Detalhes e Funcionalidade:
- Estacionamento: Inclui 2 Lugares de Garagem (frações 27 e 28).
- Conforto: Climatização instalada e acabamentos modernos.
- Luz Natural: Todas as divisões principais (sala e 3 quartos) estão viradas para a varanda, garantindo iluminação natural constante.

Resumo
- Tipologia: T3.
- Área Bruta: 123,05 m².
- Varanda: 18,40 m² (acesso por todas as divisões).
- Destaque: Suite com Walk-in Closet.
- Estacionamento: 2 Lugares.

Um T3 que equilibra a vida social em Open Space com o luxo de uma Suite com Closet.

Características da Propriedade

  • Certificação energética: A
  • Orientação solar: Norte, Sul
  • Elevador
  • Pisos: 3
  • Com estacionamento
  • Nº estacionamentos: 2
  • Garagem
  • Portão de garagem eléctrico
  • Varanda
  • Proximidade: Aeroporto, Serra, Praia, Zona comercial, Restaurantes, Cidade, Campo, Hospital, Farmácia, Transportes Públicos, Escolas, Piscinas Públicas, Parque infantil
  • Localização central
  • Localização sossegada
  • Orientação: Exterior

Downloads

Propriedades semelhantes

® Homebook Portugal Todos os direitos reservados.
Powered by Casafari CRM
(0) (2)
+351 211 570 618
(Chamada para rede fixa nacional)